Top.Mail.Ru

улица Трофимова, д. 16А

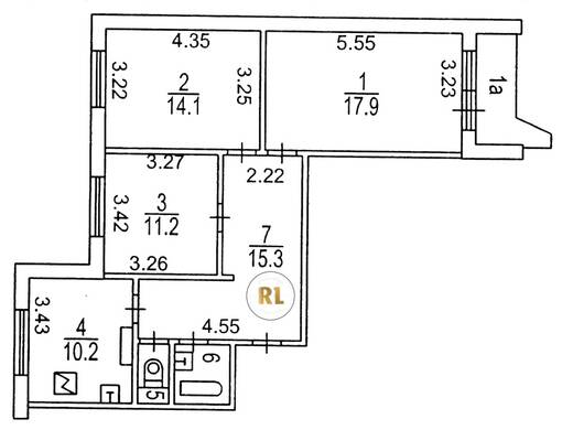
База каталог, Кол-во помещений: 78, П-44, Москва, Южнопортовый, Площадь парковки: 100, Пассажирский лифт: 2, От метро: 770, Юго-Восточный, да, Наименьшее кол-во этажей: 1, Наибольшее кол-во этажей: 10, Автозаводская, Кол-во подъездов: 2, Год ввода в эксплуатацию: 2001, Кол-во нежилых помещений: 6, 3-комн, Кол-во жилых помещений: 72, дом 16А, нет, да, да, да, да, да, Грузовых лифтов: 2, Год постройки: 2001, улица Трофимова, 37.670887, 55.702642
Свяжитесь со мной на счет цены
10 дн.
T55S702642L37S670887T

На карте


Условия сделки

Источник


Старт продаж

Возможно заинтересует