Top.Mail.Ru

улица Недорубова, д. 20, к. 2

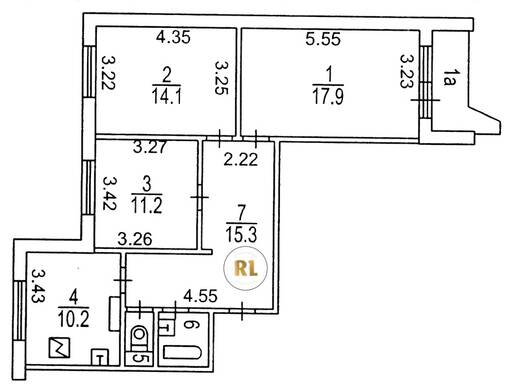
База каталог, Кол-во подъездов: 3, Имеется, П-44-1/17, Москва, Некрасовка, Пассажирский лифт: 6, От метро: 570, Юго-Восточный, да, Наименьшее кол-во этажей: 17, Наибольшее кол-во этажей: 17, Некрасовка, Кол-во помещений: 195, Кол-во нежилых помещений: 3, Год ввода в эксплуатацию: 2016, 3-комн, Кол-во жилых помещений: 192, В+, дом 20, корпус 2, да, да, да, да, да, да, Имеется, Грузовых лифтов: 3, Год постройки: 2015, улица Недорубова, 37.936896, 55.702794
Свяжитесь со мной на счет цены
10 дн.
T55S702794L37S936896T

На карте


Условия сделки

Источник


Старт продаж

Возможно заинтересует