Top.Mail.Ru

Рождественская ул., д. 33

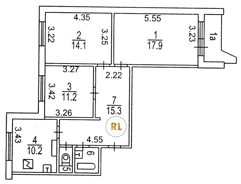
База каталог, Кол-во подъездов: 8, Имеется, П-44, Москва, Некрасовка, Площадь парковки: 0, Пассажирский лифт: 12, От метро: 185, Юго-Восточный, нет, Наименьшее кол-во этажей: 25, Наибольшее кол-во этажей: 25, Некрасовка, Кол-во помещений: 780, Кол-во нежилых помещений: 12, Год ввода в эксплуатацию: 2016, 3-комн, Кол-во жилых помещений: 768, В+, дом 33, да, да, да, да, да, да, Имеется, Грузовых лифтов: 12, Год постройки: 2016, Рождественская улица, 37.931713, 55.703185
Свяжитесь со мной на счет цены
10 дн.
T55S703185L37S931713T

На карте


Условия сделки

Источник


Старт продаж

Возможно заинтересует