Top.Mail.Ru

улица Недорубова, д. 20, к. 1

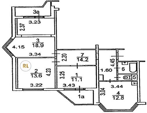
База каталог, Кол-во подъездов: 2, П-44T, Москва, Некрасовка, Площадь парковки: 0, Пассажирский лифт: 3, От метро: 500, Юго-Восточный, нет, Наименьшее кол-во этажей: 25, Наибольшее кол-во этажей: 25, Некрасовка, Кол-во помещений: 195, Кол-во нежилых помещений: 3, Год ввода в эксплуатацию: 2016, 3-комн, Кол-во жилых помещений: 192, С, дом 20, корпус 1, да, да, да, да, да, да, Имеется, Грузовых лифтов: 3, Год постройки: 2015, улица Недорубова, 37.935432, 55.703195
Свяжитесь со мной на счет цены
10 дн.
T55S703195L37S935432T

На карте


Условия сделки

Источник


Старт продаж

Возможно заинтересует