Top.Mail.Ru

улица Вертолетчиков, д.4, к.8

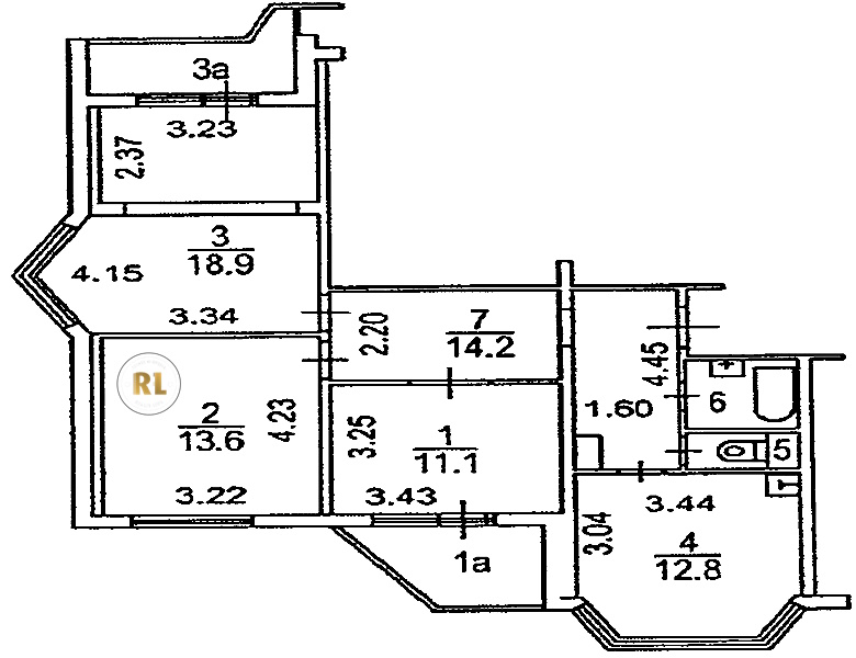
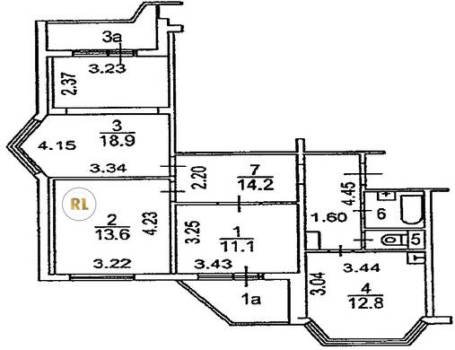
База каталог, Кол-во подъездов: 5, Имеется, П-44К, Москва, Некрасовка, Площадь парковки: 0, Пассажирский лифт: 5, От метро: 1430, Юго-Восточный, нет, Наименьшее кол-во этажей: 17, Наибольшее кол-во этажей: 17, Некрасовка, Кол-во помещений: 325, Кол-во нежилых помещений: 5, Год ввода в эксплуатацию: 2019, 3-комн, Кол-во жилых помещений: 320, В+, дом 4, к.8, нет, да, да, да, да, нет, Имеется, Грузовых лифтов: 5, Год постройки: 2019, улица Вертолетчиков, 37.947838, 55.703261
Свяжитесь со мной на счет цены
10 дн.
T55S703261L37S947838T

На карте


Условия сделки

Источник


Старт продаж

Возможно заинтересует