Top.Mail.Ru

Рождественская ул., д. 15

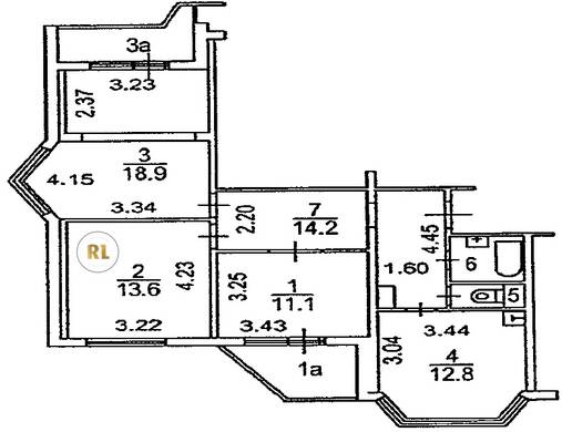
База каталог, Кол-во подъездов: 1, Отсутствует, П-44T, Москва, Некрасовка, Площадь парковки: 0, Пассажирский лифт: 1, От метро: 630, Юго-Восточный, нет, Наименьшее кол-во этажей: 22, Наибольшее кол-во этажей: 22, Некрасовка, Кол-во помещений: 153, Кол-во нежилых помещений: 6, Год ввода в эксплуатацию: 2012, 3-комн, Кол-во жилых помещений: 147, Не присвоен, дом 15, нет, да, да, да, да, да, Отсутствует, Грузовых лифтов: 2, Год постройки: 2012, Рождественская улица, 37.916819, 55.703271
Свяжитесь со мной на счет цены
10 дн.
T55S703271L37S916819T

На карте


Условия сделки

Источник


Старт продаж

Возможно заинтересует