Top.Mail.Ru

Пронская ул., д. 2

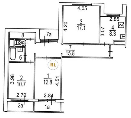
База каталог, Кол-во подъездов: 2, П-55, Москва, Выхино-Жулебино, Площадь парковки: 0, Пассажирский лифт: 2, От метро: 360, Юго-Восточный, нет, Наименьшее кол-во этажей: 14, Наибольшее кол-во этажей: 14, Лермонтовский проспект, Кол-во помещений: 82, Кол-во нежилых помещений: 4, Год ввода в эксплуатацию: 1994, 3-комн, Кол-во жилых помещений: 78, С, дом 2, да, да, да, да, да, да, Грузовых лифтов: 2, Год постройки: 1994, Пронская улица, 37.845565, 55.703281
Свяжитесь со мной на счет цены
10 дн.
T55S703281L37S845565T

На карте


Условия сделки

Источник


Старт продаж

Возможно заинтересует