Top.Mail.Ru

улица Вертолетчиков, д.4, к.7

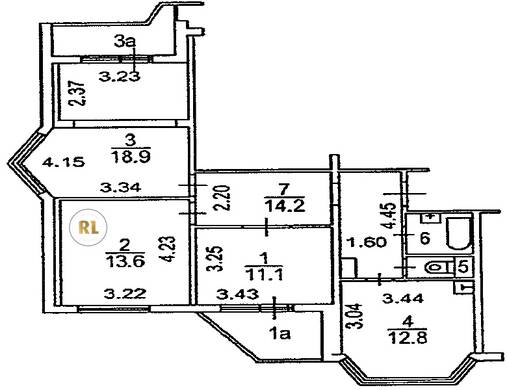
База каталог, Кол-во подъездов: 4, Имеется, П-44К, Москва, Некрасовка, Площадь парковки: 0, Пассажирский лифт: 4, От метро: 1380, Юго-Восточный, нет, Наименьшее кол-во этажей: 17, Наибольшее кол-во этажей: 17, Некрасовка, Кол-во помещений: 258, Кол-во нежилых помещений: 2, Год ввода в эксплуатацию: 2019, 3-комн, Кол-во жилых помещений: 256, В+, дом 4, к.7, нет, да, да, да, да, нет, Имеется, Грузовых лифтов: 4, Год постройки: 2019, улица Вертолетчиков, 37.946886, 55.703951
Свяжитесь со мной на счет цены
10 дн.
T55S703951L37S946886T

На карте


Условия сделки

Источник


Старт продаж

Возможно заинтересует