Top.Mail.Ru

улица Липчанского, д. 4

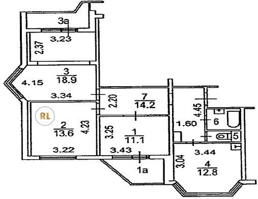
База каталог, Кол-во подъездов: 3, Имеется, П-44T, Москва, Некрасовка, Площадь парковки: 0, Пассажирский лифт: 6, От метро: 600, Юго-Восточный, нет, Наименьшее кол-во этажей: 17, Наибольшее кол-во этажей: 17, Некрасовка, Кол-во помещений: 197, Кол-во нежилых помещений: 5, Год ввода в эксплуатацию: 2016, 3-комн, Кол-во жилых помещений: 192, В, дом 4, нет, да, да, да, да, да, Имеется, Грузовых лифтов: 0, Год постройки: 2015, улица Липчанского, 37.935810, 55.704255
Свяжитесь со мной на счет цены
10 дн.
T55S704255L37S935810T

На карте


Условия сделки

Источник


Старт продаж

Возможно заинтересует