Top.Mail.Ru

Рождественская ул., д. 19, к. 2

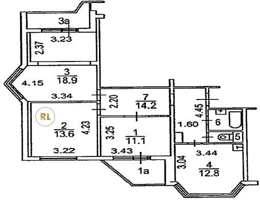
База каталог, Кол-во подъездов: 4, Отсутствует, П-44T, Москва, Некрасовка, Площадь парковки: 0, Пассажирский лифт: 4, От метро: 750, Юго-Восточный, нет, Наименьшее кол-во этажей: 1, Наибольшее кол-во этажей: 17, Некрасовка, Кол-во помещений: 525, Кол-во нежилых помещений: 6, Год ввода в эксплуатацию: 2010, 3-комн, Кол-во жилых помещений: 519, Не присвоен, дом 19, корпус 2, нет, да, да, да, да, да, Отсутствует, Грузовых лифтов: 4, Год постройки: 2010, Рождественская улица, 37.915732, 55.704610
Свяжитесь со мной на счет цены
10 дн.
T55S704610L37S915732T

На карте


Условия сделки

Источник


Старт продаж

Возможно заинтересует