Top.Mail.Ru

Самаркандский бульвар, д. 12

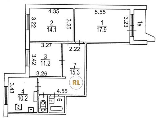
База каталог, Кол-во подъездов: 3, Отсутствует, П-44, Москва, Выхино-Жулебино, Пассажирский лифт: 3, От метро: 650, Юго-Восточный, да, Наименьшее кол-во этажей: 1, Наибольшее кол-во этажей: 17, Юго-Восточная, Кол-во помещений: 204, Кол-во нежилых помещений: 1, Год ввода в эксплуатацию: 1992, 3-комн, Кол-во жилых помещений: 203, E, дом 12, нет, да, да, да, да, да, Имеется, Грузовых лифтов: 3, Год постройки: 1992, Самаркандский бульвар, 37.825999, 55.704727
Свяжитесь со мной на счет цены
10 дн.
T55S704727L37S825999T

На карте


Условия сделки

Источник


Старт продаж

Возможно заинтересует