Top.Mail.Ru

Покровская ул., д. 31

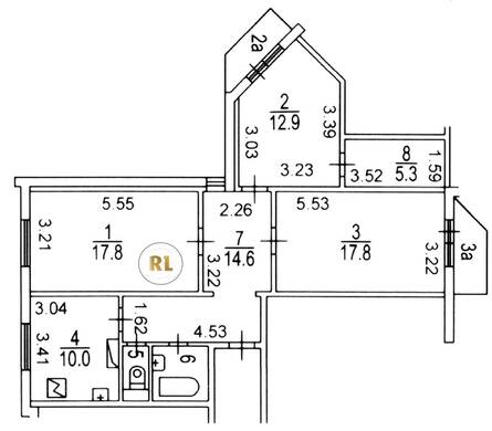
База каталог, Кол-во подъездов: 4, П-3M, Москва, Некрасовка, Площадь парковки: 0, Пассажирский лифт: 4, От метро: 223, Юго-Восточный, нет, Наименьшее кол-во этажей: 17, Наибольшее кол-во этажей: 17, Некрасовка, Кол-во помещений: 262, Кол-во нежилых помещений: 6, Год ввода в эксплуатацию: 2012, 3-комн, Кол-во жилых помещений: 256, Не присвоен, дом 31, да, да, да, да, да, да, Отсутствует, Грузовых лифтов: 4, Год постройки: 2011, Покровская улица, 37.922335, 55.704996
Свяжитесь со мной на счет цены
10 дн.
T55S704996L37S922335T

На карте


Условия сделки

Источник


Старт продаж

Возможно заинтересует