Top.Mail.Ru

Матвеевская ул., д. 36

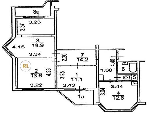
База каталог, Кол-во подъездов: 4, П-44T, Москва, Очаково-Матвеевское, Площадь парковки: 0, Пассажирский лифт: 4, От метро: 1160, Западный, нет, Наименьшее кол-во этажей: 17, Наибольшее кол-во этажей: 17, Аминьевская, Кол-во помещений: 265, Кол-во нежилых помещений: 2, Год ввода в эксплуатацию: 2004, 3-комн, Кол-во жилых помещений: 263, Не присвоен, дом 36, нет, да, да, да, да, нет, Грузовых лифтов: 4, Год постройки: 2004, Матвеевская улица, 37.459720, 55.705087
Свяжитесь со мной на счет цены
10 дн.
T55S705087L37S459720T

На карте


Условия сделки

Источник


Старт продаж

Возможно заинтересует