Top.Mail.Ru

улица Липчанского, д. 1

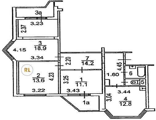
База каталог, Кол-во подъездов: 3, Отсутствует, П-44T, Москва, Некрасовка, Площадь парковки: 0, Пассажирский лифт: 3, От метро: 530, Юго-Восточный, нет, Наименьшее кол-во этажей: 17, Наибольшее кол-во этажей: 17, Некрасовка, Кол-во помещений: 197, Кол-во нежилых помещений: 4, Год ввода в эксплуатацию: 2013, 3-комн, Кол-во жилых помещений: 193, Не присвоен, дом 1, да, да, да, да, да, да, Отсутствует, Грузовых лифтов: 3, Год постройки: 2013, улица Липчанского, 37.933860, 55.705255
Свяжитесь со мной на счет цены
10 дн.
T55S705255L37S933860T

На карте


Условия сделки

Источник


Старт продаж

Возможно заинтересует