Top.Mail.Ru

улица Липчанского, д. 3

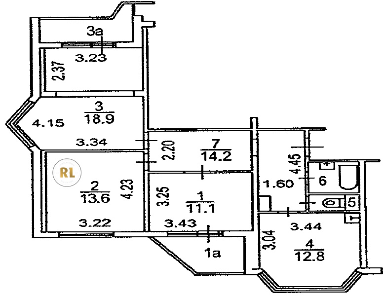
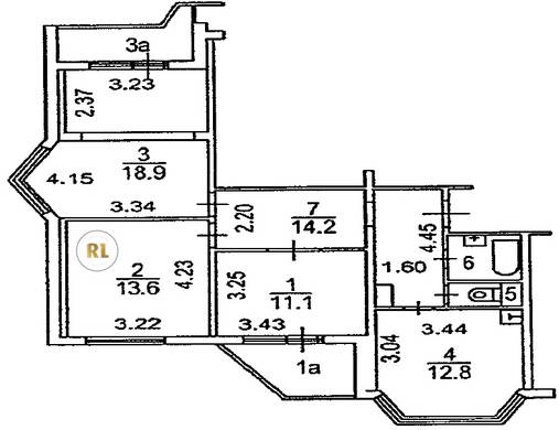
База каталог, Кол-во подъездов: 2, Имеется, П-44T, Москва, Некрасовка, Площадь парковки: 0, Пассажирский лифт: 2, От метро: 610, Юго-Восточный, нет, Наименьшее кол-во этажей: 16, Наибольшее кол-во этажей: 17, Некрасовка, Кол-во помещений: 131, Кол-во нежилых помещений: 3, Год ввода в эксплуатацию: 2014, 3-комн, Кол-во жилых помещений: 128, D, дом 3, нет, да, да, да, да, да, Имеется, Грузовых лифтов: 2, Год постройки: 2013, улица Липчанского, 37.935531, 55.705361
Свяжитесь со мной на счет цены
10 дн.
T55S705361L37S935531T

На карте


Условия сделки

Источник


Старт продаж

Возможно заинтересует