Top.Mail.Ru

улица Камова, д. 5А

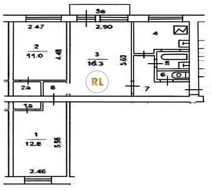
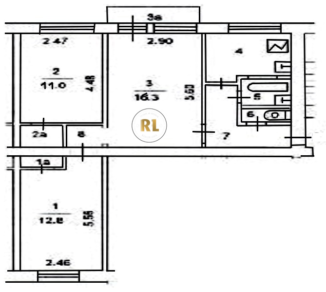
База каталог, Кол-во подъездов: 3, Отсутствует, I-511, Москва, Косино-Ухтомский, Площадь парковки: 0, Пассажирский лифт: 0, От метро: 1110, Восточный, нет, Наименьшее кол-во этажей: 5, Наибольшее кол-во этажей: 5, Улица Дмитриевского, Кол-во помещений: 60, Кол-во нежилых помещений: 0, Год ввода в эксплуатацию: 1965, 3-комн, Кол-во жилых помещений: 60, Не присвоен, дом 5А, нет, да, да, да, да, нет, Имеется, Грузовых лифтов: 0, Год постройки: 1965, улица Камова, 37.871832, 55.705630
Свяжитесь со мной на счет цены
10 дн.
T55S705630L37S871832T

На карте


Условия сделки

Источник


Старт продаж

Возможно заинтересует