Top.Mail.Ru

улица Липчанского, д. 9

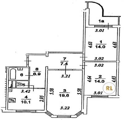
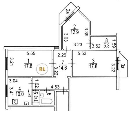
База каталог, Кол-во подъездов: 4, Имеется, П-3M, Москва, Некрасовка, Площадь парковки: 0, Пассажирский лифт: 4, От метро: 950, Юго-Восточный, нет, Наименьшее кол-во этажей: 16, Наибольшее кол-во этажей: 17, Некрасовка, Кол-во помещений: 265, Кол-во нежилых помещений: 5, Год ввода в эксплуатацию: 2013, 3-комн, Кол-во жилых помещений: 260, D, дом 9, нет, да, да, да, да, да, Имеется, Грузовых лифтов: 4, Год постройки: 2013, улица Липчанского, 37.940517, 55.705737
12 800 000 Р
10 дн.
T55S705737L37S940517T
+

На карте


Условия сделки

Источник


Старт продаж

Возможно заинтересует