Top.Mail.Ru

Рождественская ул., д. 25

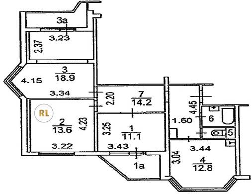
База каталог, Кол-во подъездов: 2, П-44T, Москва, Некрасовка, Пассажирский лифт: 2, От метро: 330, Юго-Восточный, да, Наименьшее кол-во этажей: 17, Наибольшее кол-во этажей: 17, Некрасовка, Кол-во помещений: 131, Кол-во нежилых помещений: 3, Год ввода в эксплуатацию: 2013, 3-комн, Кол-во жилых помещений: 128, С, дом 25, да, да, да, да, да, да, Грузовых лифтов: 2, Год постройки: 2011, Рождественская улица, 37.922398, 55.706695
Свяжитесь со мной на счет цены
10 дн.
T55S706695L37S922398T

На карте


Условия сделки

Источник


Старт продаж

Возможно заинтересует