Top.Mail.Ru

Ферганская ул., д. 16, к. 2

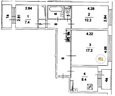
База каталог, Кол-во подъездов: 2, Отсутствует, П-30, Москва, Выхино-Жулебино, Пассажирский лифт: 4, От метро: 500, Юго-Восточный, да, Наименьшее кол-во этажей: 1, Наибольшее кол-во этажей: 12, Юго-Восточная, Кол-во помещений: 90, Кол-во нежилых помещений: 2, Год ввода в эксплуатацию: 1979, 3-комн, Кол-во жилых помещений: 88, D, дом 16, корпус 2, да, да, да, да, да, да, Имеется, Грузовых лифтов: 0, Год постройки: 1979, Ферганская улица, 37.810459, 55.706710
Свяжитесь со мной на счет цены
10 дн.
T55S706710L37S810459T

На карте


Условия сделки

Источник


Старт продаж

Возможно заинтересует