Top.Mail.Ru

Беловежская ул., д. 73

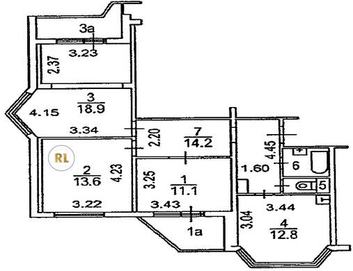
База каталог, Кол-во подъездов: 2, Отсутствует, П-44T, Москва, Можайский, Площадь парковки: 0, Пассажирский лифт: 4, От метро: 4700, Западный, нет, Наименьшее кол-во этажей: 0, Наибольшее кол-во этажей: 14, Давыдково, Кол-во помещений: 104, Кол-во нежилых помещений: 0, Год ввода в эксплуатацию: 2007, 3-комн, Кол-во жилых помещений: 104, Не присвоен, дом 73, нет, нет, нет, нет, нет, нет, Имеется, Грузовых лифтов: 0, Год постройки: 2007, Беловежская улица, 37.397252, 55.707451
Свяжитесь со мной на счет цены
10 дн.
T55S707451L37S397252T

На карте


Условия сделки

Источник


Старт продаж

Возможно заинтересует