Top.Mail.Ru

Рождественская ул., д. 27, к. 2

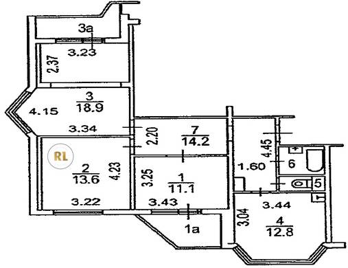
База каталог, Кол-во подъездов: 2, П-44T, Москва, Некрасовка, Площадь парковки: 0, Пассажирский лифт: 2, От метро: 490, Юго-Восточный, нет, Наименьшее кол-во этажей: 17, Наибольшее кол-во этажей: 17, Некрасовка, Кол-во помещений: 131, Кол-во нежилых помещений: 2, Год ввода в эксплуатацию: 2012, 3-комн, Кол-во жилых помещений: 129, дом 27, корпус 2, да, да, да, да, да, да, Отсутствует, Грузовых лифтов: 2, Год постройки: 2011, Рождественская улица, 37.923341, 55.707699
Свяжитесь со мной на счет цены
10 дн.
T55S707699L37S923341T

На карте


Условия сделки

Источник


Старт продаж

Возможно заинтересует