Top.Mail.Ru

улица Недорубова, д. 25

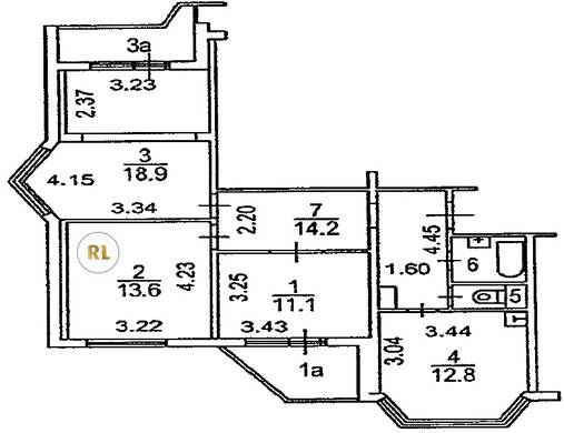
База каталог, Кол-во подъездов: 2, Отсутствует, П-44К, Москва, Некрасовка, Площадь парковки: 0, Пассажирский лифт: 2, От метро: 810, Юго-Восточный, нет, Наименьшее кол-во этажей: 17, Наибольшее кол-во этажей: 17, Некрасовка, Кол-во помещений: 130, Кол-во нежилых помещений: 1, Год ввода в эксплуатацию: 2013, 3-комн, Кол-во жилых помещений: 129, Не присвоен, дом 25, нет, да, да, да, да, да, Отсутствует, Грузовых лифтов: 2, Год постройки: 2013, улица Недорубова, 37.929944, 55.708450
Свяжитесь со мной на счет цены
10 дн.
T55S708450L37S929944T

На карте


Условия сделки

Источник


Старт продаж

Возможно заинтересует