Top.Mail.Ru

Сормовская ул., д. 3, к. 4

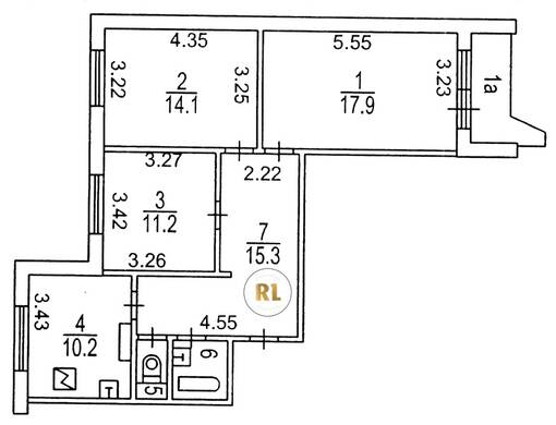
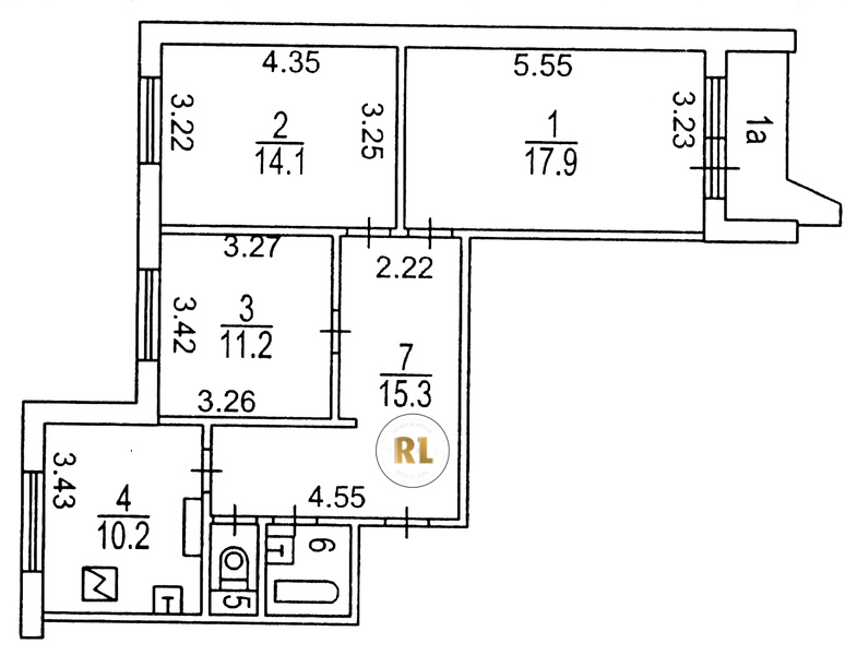
База каталог, Кол-во подъездов: 2, Отсутствует, П-44, Москва, Выхино-Жулебино, Пассажирский лифт: 2, От метро: 550, Юго-Восточный, да, Наименьшее кол-во этажей: 1, Наибольшее кол-во этажей: 16, Юго-Восточная, Кол-во помещений: 128, Кол-во нежилых помещений: 1, Год ввода в эксплуатацию: 1981, 3-комн, Кол-во жилых помещений: 127, E, дом 3, корпус 4, да, да, да, да, да, да, Имеется, Грузовых лифтов: 2, Год постройки: 1981, Сормовская улица, 37.815058, 55.709926
Свяжитесь со мной на счет цены
10 дн.
T55S709926L37S815058T

На карте


Условия сделки

Источник


Старт продаж

Возможно заинтересует