Top.Mail.Ru

Сормовская ул., д. 8, к. 2

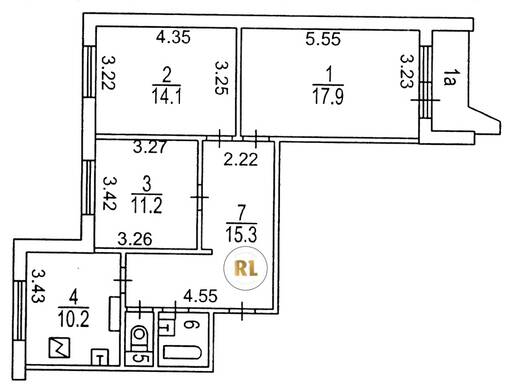
База каталог, Кол-во подъездов: 2, П-44, Москва, Выхино-Жулебино, Площадь парковки: 0, Пассажирский лифт: 2, От метро: 880, Юго-Восточный, нет, Наименьшее кол-во этажей: 0, Наибольшее кол-во этажей: 16, Юго-Восточная, Кол-во помещений: 227, Кол-во нежилых помещений: 100, Год ввода в эксплуатацию: 1982, 3-комн, Кол-во жилых помещений: 127, D, дом 8, корпус 2, нет, да, да, да, да, да, Имеется, Грузовых лифтов: 2, Год постройки: 1982, Сормовская улица, 37.809605, 55.710854
Свяжитесь со мной на счет цены
10 дн.
T55S710854L37S809605T

На карте


Условия сделки

Источник


Старт продаж

Возможно заинтересует