Top.Mail.Ru

Вяземская ул., д. 11, к. 1

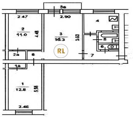
База каталог, Кол-во подъездов: 3, Отсутствует, I-511, Москва, Можайский, Площадь парковки: 0, Пассажирский лифт: 0, От метро: 3900, Западный, нет, Наименьшее кол-во этажей: 0, Наибольшее кол-во этажей: 5, Давыдково, Кол-во помещений: 60, Кол-во нежилых помещений: 0, Год ввода в эксплуатацию: 1967, 3-комн, Кол-во жилых помещений: 60, Не присвоен, дом 11, корпус 1, нет, нет, нет, нет, нет, нет, Имеется, Грузовых лифтов: 0, Год постройки: 1967, Вяземская улица, 37.405390, 55.711280
Свяжитесь со мной на счет цены
10 дн.
T55S711280L37S405390T

На карте


Условия сделки

Источник


Старт продаж

Возможно заинтересует