Top.Mail.Ru

Беловежская ул., д. 39, к. 5

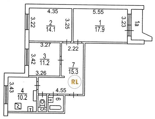
База каталог, Кол-во подъездов: 3, П-44, Москва, Можайский, Площадь парковки: 0, Пассажирский лифт: 6, От метро: 4300, Западный, нет, Наименьшее кол-во этажей: 0, Наибольшее кол-во этажей: 22, Молодёжная, Кол-во помещений: 251, Кол-во нежилых помещений: 1, Год ввода в эксплуатацию: 1997, 3-комн, Кол-во жилых помещений: 250, дом 39, корпус 5, нет, нет, нет, нет, нет, нет, Имеется, Грузовых лифтов: 3, Год постройки: 1997, Беловежская улица, 37.397287, 55.711493
Свяжитесь со мной на счет цены
10 дн.
T55S711493L37S397287T

На карте


Условия сделки

Источник


Старт продаж

Возможно заинтересует