Top.Mail.Ru

Рязанский проспект, д. 74

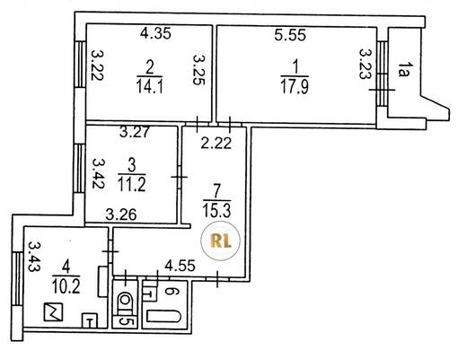
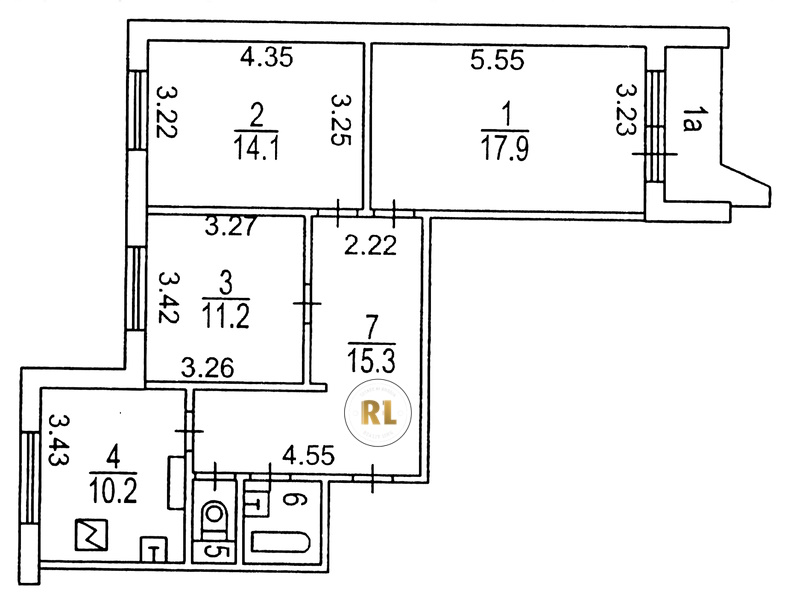
База каталог, Кол-во подъездов: 4, Отсутствует, П-44, Москва, Выхино-Жулебино, Пассажирский лифт: 4, От метро: 580, Юго-Восточный, да, Наименьшее кол-во этажей: 1, Наибольшее кол-во этажей: 16, Выхино, Кол-во помещений: 253, Кол-во нежилых помещений: 2, Год ввода в эксплуатацию: 1982, 3-комн, Кол-во жилых помещений: 251, дом 74, да, да, да, да, да, да, Имеется, Грузовых лифтов: 4, Год постройки: 1982, Рязанский проспект, 37.814887, 55.711924
Свяжитесь со мной на счет цены
10 дн.
T55S711924L37S814887T

На карте


Условия сделки

Источник


Старт продаж

Возможно заинтересует