Top.Mail.Ru

Кременчугская ул., д. 44, к. 1

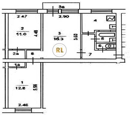
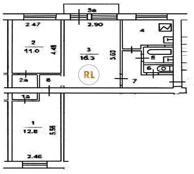
База каталог, Кол-во подъездов: 4, I-511, Москва, Фили-Давыдково, Площадь парковки: 0, Пассажирский лифт: 0, От метро: 760, Западный, нет, Наименьшее кол-во этажей: 1, Наибольшее кол-во этажей: 5, Давыдково, Кол-во помещений: 81, Кол-во нежилых помещений: 1, Год ввода в эксплуатацию: 1962, 3-комн, Кол-во жилых помещений: 80, А, дом 44, корпус 1, нет, да, да, да, да, да, Имеется, Грузовых лифтов: 0, Год постройки: 1962, Кременчугская улица, 37.457780, 55.712315
Свяжитесь со мной на счет цены
10 дн.
T55S712315L37S457780T

На карте


Условия сделки

Источник


Старт продаж

Возможно заинтересует