Top.Mail.Ru

Оренбургская ул., д. 17

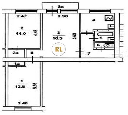
База каталог, Кол-во подъездов: 8, I-511, Москва, Косино-Ухтомский, Площадь парковки: 758, Пассажирский лифт: 0, От метро: 1060, Восточный, да, Наименьшее кол-во этажей: 5, Наибольшее кол-во этажей: 5, Улица Дмитриевского, Кол-во помещений: 129, Кол-во нежилых помещений: 0, Год ввода в эксплуатацию: 1967, 3-комн, Кол-во жилых помещений: 129, Не присвоен, дом 17, нет, да, да, да, да, да, Имеется, Грузовых лифтов: 0, Год постройки: 1967, Оренбургская улица, 37.864519, 55.712553
Свяжитесь со мной на счет цены
10 дн.
T55S712553L37S864519T

На карте


Условия сделки

Источник


Старт продаж

Возможно заинтересует