Top.Mail.Ru

Кременчугская ул., д. 44, к. 2

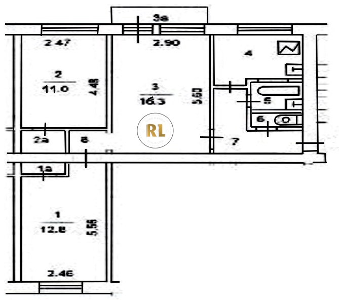
База каталог, Кол-во подъездов: 6, I-511, Москва, Фили-Давыдково, Площадь парковки: 0, Пассажирский лифт: 0, От метро: 650, Западный, нет, Наименьшее кол-во этажей: 1, Наибольшее кол-во этажей: 5, Давыдково, Кол-во помещений: 122, Кол-во нежилых помещений: 2, Год ввода в эксплуатацию: 1961, 3-комн, Кол-во жилых помещений: 120, А, дом 44, корпус 2, нет, да, да, да, да, да, Имеется, Грузовых лифтов: 0, Год постройки: 1961, Кременчугская улица, 37.457609, 55.713157
Свяжитесь со мной на счет цены
10 дн.
T55S713157L37S457609T

На карте


Условия сделки

Источник


Старт продаж

Возможно заинтересует