Top.Mail.Ru

Витебская ул., д. 5

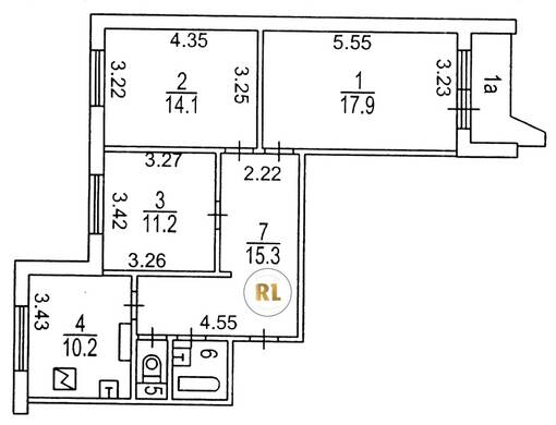
База каталог, Кол-во подъездов: 4, Отсутствует, П-44, Москва, Можайский, Площадь парковки: 0, Пассажирский лифт: 4, От метро: 3300, Западный, нет, Наименьшее кол-во этажей: 0, Наибольшее кол-во этажей: 17, Давыдково, Кол-во помещений: 270, Кол-во нежилых помещений: 0, Год ввода в эксплуатацию: 1995, 3-комн, Кол-во жилых помещений: 270, Не присвоен, дом 5, нет, нет, нет, нет, нет, нет, Имеется, Грузовых лифтов: 4, Год постройки: 1995, Витебская улица, 37.410843, 55.713922
Свяжитесь со мной на счет цены
10 дн.
T55S713922L37S410843T

На карте


Условия сделки

Источник


Старт продаж

Возможно заинтересует