Top.Mail.Ru

Кременчугская ул., д. 36

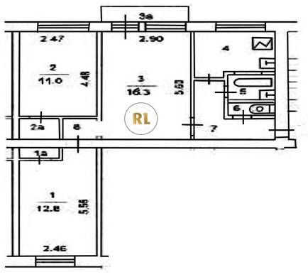
База каталог, Кол-во подъездов: 3, I-511, Москва, Фили-Давыдково, Площадь парковки: 0, Пассажирский лифт: 0, От метро: 900, Западный, нет, Наименьшее кол-во этажей: 1, Наибольшее кол-во этажей: 5, Давыдково, Кол-во помещений: 60, Кол-во нежилых помещений: 1, Год ввода в эксплуатацию: 1964, 3-комн, Кол-во жилых помещений: 59, А, дом 36, нет, да, да, да, да, да, Имеется, Грузовых лифтов: 0, Год постройки: 1964, Кременчугская улица, 37.461822, 55.714232
Свяжитесь со мной на счет цены
10 дн.
T55S714232L37S461822T

На карте


Условия сделки

Источник


Старт продаж

Возможно заинтересует