Top.Mail.Ru

Дорогобужская ул., д. 7, к. 1

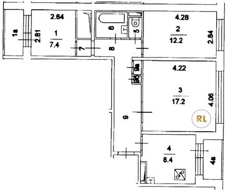
База каталог, Кол-во подъездов: 4, П-30, Москва, Можайский, Пассажирский лифт: 6, От метро: 3300, Западный, да, Наименьшее кол-во этажей: 0, Наибольшее кол-во этажей: 14, Давыдково, Кол-во помещений: 165, Кол-во нежилых помещений: 0, Год ввода в эксплуатацию: 1992, 3-комн, Кол-во жилых помещений: 165, дом 7, корпус 1, нет, нет, нет, нет, нет, нет, Имеется, Грузовых лифтов: 4, Год постройки: 1992, Дорогобужская улица, 37.412783, 55.714257
Свяжитесь со мной на счет цены
10 дн.
T55S714257L37S412783T

На карте


Условия сделки

Источник


Старт продаж

Возможно заинтересует