Top.Mail.Ru

Кременчугская ул., д. 44, к. 4

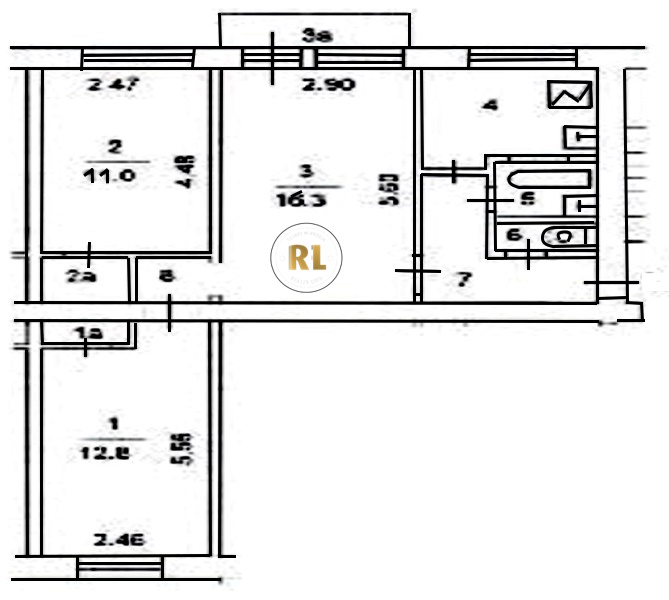
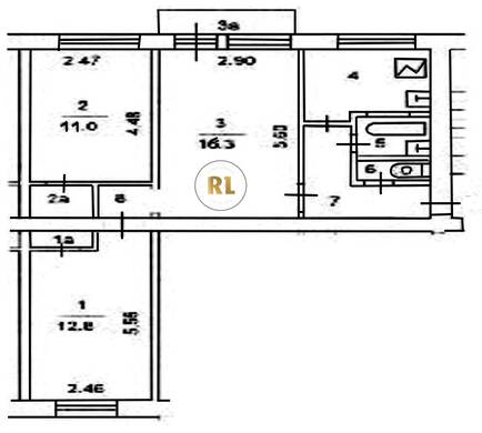
База каталог, Кол-во подъездов: 3, I-511, Москва, Фили-Давыдково, Площадь парковки: 0, Пассажирский лифт: 0, От метро: 560, Западный, нет, Наименьшее кол-во этажей: 1, Наибольшее кол-во этажей: 5, Давыдково, Кол-во помещений: 33, Кол-во нежилых помещений: 3, Год ввода в эксплуатацию: 1960, 3-комн, Кол-во жилых помещений: 30, А, дом 44, корпус 4, да, да, да, да, да, да, Имеется, Грузовых лифтов: 0, Год постройки: 1960, Кременчугская улица, 37.456972, 55.714683
Свяжитесь со мной на счет цены
10 дн.
T55S714683L37S456972T

На карте


Условия сделки

Источник


Старт продаж

Возможно заинтересует