Top.Mail.Ru

Волжский бульвар, д. 11

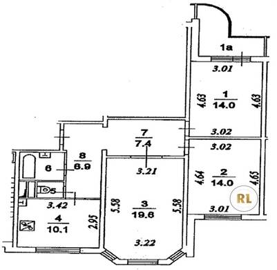
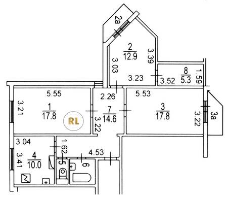
База каталог, Кол-во подъездов: 6, П-3M, Москва, Рязанский, Площадь парковки: 0, Пассажирский лифт: 6, От метро: 1430, Юго-Восточный, нет, Наименьшее кол-во этажей: 23, Наибольшее кол-во этажей: 23, Текстильщики, Кол-во помещений: 540, Кол-во нежилых помещений: 12, Год ввода в эксплуатацию: 2006, 3-комн, Кол-во жилых помещений: 528, Не присвоен, дом 11, нет, да, да, да, да, нет, Грузовых лифтов: 12, Год постройки: 2006, Волжский бульвар, 37.747621, 55.714698
Свяжитесь со мной на счет цены
10 дн.
T55S714698L37S747621T

На карте


Условия сделки

Источник


Старт продаж

Возможно заинтересует