Top.Mail.Ru

Можайское шоссе, д. 45, к. 3

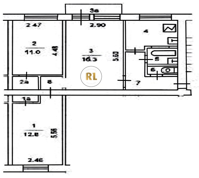
База каталог, Кол-во подъездов: 3, Отсутствует, I-511, Москва, Можайский, Площадь парковки: 0, Пассажирский лифт: 0, От метро: 3500, Западный, нет, Наименьшее кол-во этажей: 0, Наибольшее кол-во этажей: 5, Кунцевская, Кол-во помещений: 60, Кол-во нежилых помещений: 0, Год ввода в эксплуатацию: 1962, 3-комн, Кол-во жилых помещений: 60, Не присвоен, дом 45, корпус 3, нет, нет, нет, нет, нет, нет, Отсутствует, Грузовых лифтов: 0, Год постройки: 1962, Можайское шоссе, 37.406594, 55.714805
Свяжитесь со мной на счет цены
10 дн.
T55S714805L37S406594T

На карте


Условия сделки

Источник


Старт продаж

Возможно заинтересует