Top.Mail.Ru

Окская ул., д. 5, к. 3

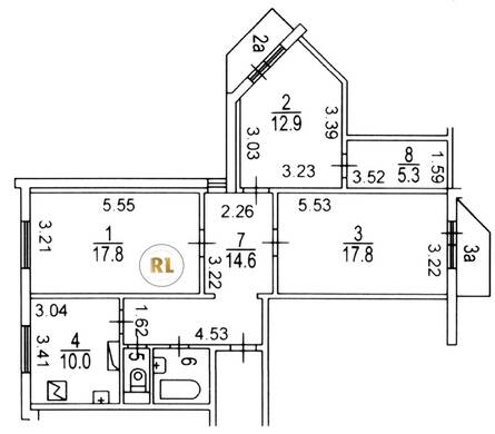
База каталог, Кол-во помещений: 270, Имеется, П-ЗМ-1/16, Москва, Рязанский, Площадь парковки: 0, Пассажирский лифт: 3, От метро: 1280, Юго-Восточный, нет, Наименьшее кол-во этажей: 23, Наибольшее кол-во этажей: 23, Кузьминки, Кол-во подъездов: 3, Год ввода в эксплуатацию: 2005, Кол-во нежилых помещений: 6, 3-комн, Кол-во жилых помещений: 264, дом 5, корпус 3, нет, да, да, да, да, нет, Имеется, Грузовых лифтов: 6, Год постройки: 2005, Окская улица, 37.756676, 55.714850
Свяжитесь со мной на счет цены
10 дн.
T55S714850L37S756676T

На карте


Условия сделки

Источник


Старт продаж

Возможно заинтересует