Top.Mail.Ru

улица Рудневка, д. 14

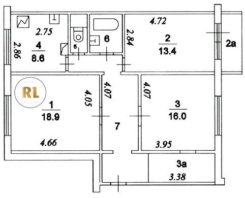
База каталог, Кол-во подъездов: 7, Отсутствует, П-46M, Москва, Косино-Ухтомский, Площадь парковки: 537, Пассажирский лифт: 7, От метро: 900, Восточный, да, Наименьшее кол-во этажей: 12, Наибольшее кол-во этажей: 10, Лухмановская, Кол-во помещений: 221, Кол-во нежилых помещений: 25, Год ввода в эксплуатацию: 2004, 3-комн, Кол-во жилых помещений: 196, А, дом 14, нет, да, да, да, да, да, Имеется, Грузовых лифтов: 7, Год постройки: 2004, улица Рудневка, 37.891801, 55.715084
Свяжитесь со мной на счет цены
10 дн.
T55S715084L37S891801T

На карте


Условия сделки

Источник


Старт продаж

Возможно заинтересует