Top.Mail.Ru

Можайское шоссе, д. 45, к. 2

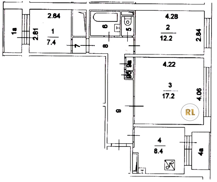
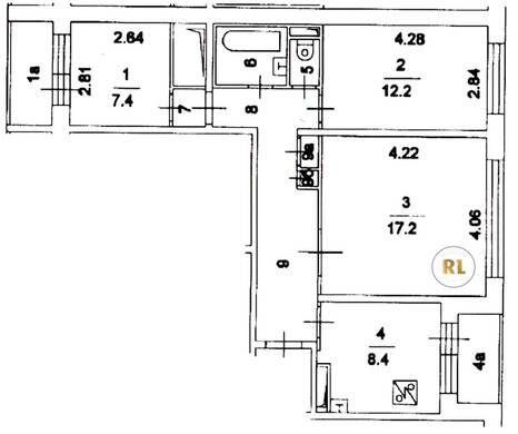
База каталог, Кол-во подъездов: 2, Отсутствует, П-30, Москва, Можайский, Площадь парковки: 0, Пассажирский лифт: 4, От метро: 3500, Западный, нет, Наименьшее кол-во этажей: 0, Наибольшее кол-во этажей: 17, Кунцевская, Кол-во помещений: 127, Кол-во нежилых помещений: 0, Год ввода в эксплуатацию: 2004, 3-комн, Кол-во жилых помещений: 127, Не присвоен, дом 45, корпус 2, нет, нет, нет, нет, нет, нет, Имеется, Грузовых лифтов: 0, Год постройки: 2004, Можайское шоссе, 37.407897, 55.715195
Свяжитесь со мной на счет цены
10 дн.
T55S715195L37S407897T

На карте


Условия сделки

Источник


Старт продаж

Возможно заинтересует