Top.Mail.Ru

улица Рудневка, д. 3

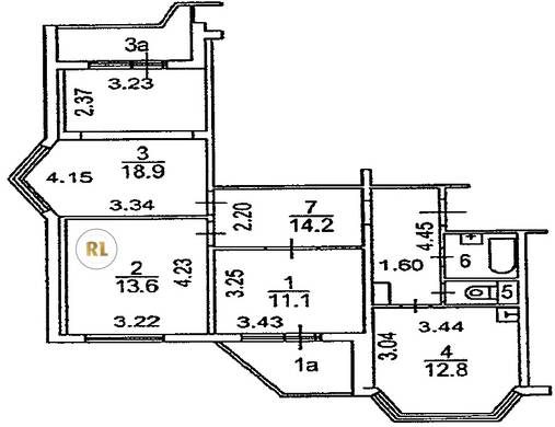
База каталог, Кол-во подъездов: 4, Имеется, П-44T, Москва, Косино-Ухтомский, Площадь парковки: 724, Пассажирский лифт: 4, От метро: 660, Восточный, да, Наименьшее кол-во этажей: 12, Наибольшее кол-во этажей: 12, Улица Дмитриевского, Кол-во помещений: 189, Кол-во нежилых помещений: 10, Год ввода в эксплуатацию: 2005, 3-комн, Кол-во жилых помещений: 179, Не присвоен, дом 3, нет, да, да, да, да, да, Отсутствует, Грузовых лифтов: 4, Год постройки: 2005, улица Рудневка, 37.880141, 55.715347
Свяжитесь со мной на счет цены
10 дн.
T55S715347L37S880141T

На карте


Условия сделки

Источник


Старт продаж

Возможно заинтересует