Top.Mail.Ru

Инициативная ул., д. 7, к. 2

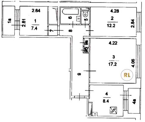
База каталог, Кол-во подъездов: 7, П-30, Москва, Фили-Давыдково, Площадь парковки: 0, Пассажирский лифт: 14, От метро: 450, Западный, нет, Наименьшее кол-во этажей: 1, Наибольшее кол-во этажей: 12, Давыдково, Кол-во помещений: 332, Кол-во нежилых помещений: 1, Год ввода в эксплуатацию: 1982, 3-комн, Кол-во жилых помещений: 331, А, дом 7, корпус 2, да, да, да, да, да, да, Имеется, Грузовых лифтов: 0, Год постройки: 1982, Инициативная улица, 37.457322, 55.715601
Свяжитесь со мной на счет цены
10 дн.
T55S715601L37S457322T

На карте


Условия сделки

Источник


Старт продаж

Возможно заинтересует