Top.Mail.Ru

Витебская ул., д. 3, к. 1

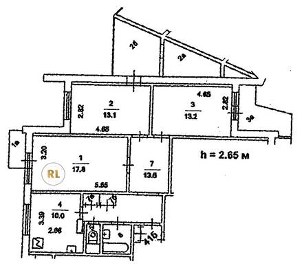
База каталог, Кол-во подъездов: 10, Отсутствует, П-3/16, Москва, Можайский, Площадь парковки: 0, Пассажирский лифт: 10, От метро: 3300, Западный, нет, Наименьшее кол-во этажей: 0, Наибольшее кол-во этажей: 17, Кунцевская, Кол-во помещений: 677, Кол-во нежилых помещений: 0, Год ввода в эксплуатацию: 1984, 3-комн, Кол-во жилых помещений: 677, Не присвоен, дом 3, корпус 1, нет, нет, нет, нет, нет, нет, Имеется, Грузовых лифтов: 10, Год постройки: 1984, Витебская улица, 37.410106, 55.715626
Свяжитесь со мной на счет цены
10 дн.
T55S715626L37S410106T

На карте


Условия сделки

Источник


Старт продаж

Возможно заинтересует