Top.Mail.Ru

улица Рудневка, д. 1

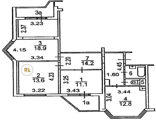
База каталог, Кол-во подъездов: 6, Имеется, П-44T, Москва, Косино-Ухтомский, Площадь парковки: 613, Пассажирский лифт: 6, От метро: 640, Восточный, да, Наименьшее кол-во этажей: 12, Наибольшее кол-во этажей: 14, Улица Дмитриевского, Кол-во помещений: 323, Кол-во нежилых помещений: 15, Год ввода в эксплуатацию: 2005, 3-комн, Кол-во жилых помещений: 308, E, дом 1, нет, да, да, да, да, да, Имеется, Грузовых лифтов: 6, Год постройки: 2005, улица Рудневка, 37.878704, 55.715778
Свяжитесь со мной на счет цены
10 дн.
T55S715778L37S878704T

На карте


Условия сделки

Источник


Старт продаж

Возможно заинтересует