Top.Mail.Ru

улица Рудневка, д. 16

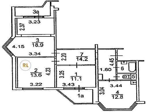
База каталог, Кол-во подъездов: 6, Имеется, П-44T, Москва, Косино-Ухтомский, Площадь парковки: 768, Пассажирский лифт: 6, От метро: 920, Восточный, да, Наименьшее кол-во этажей: 10, Наибольшее кол-во этажей: 10, Лухмановская, Кол-во помещений: 234, Кол-во нежилых помещений: 18, Год ввода в эксплуатацию: 2004, 3-комн, Кол-во жилых помещений: 216, D, дом 16, нет, да, да, да, да, да, Имеется, Грузовых лифтов: 6, Год постройки: 2004, улица Рудневка, 37.894541, 55.715920
Свяжитесь со мной на счет цены
10 дн.
T55S715920L37S894541T

На карте


Условия сделки

Источник


Старт продаж

Возможно заинтересует