Top.Mail.Ru

Инициативная ул., д. 14, к. 1

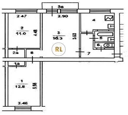
База каталог, Кол-во подъездов: 3, I-511, Москва, Фили-Давыдково, Площадь парковки: 0, Пассажирский лифт: 0, От метро: 380, Западный, нет, Наименьшее кол-во этажей: 1, Наибольшее кол-во этажей: 4, Давыдково, Кол-во помещений: 36, Кол-во нежилых помещений: 0, Год ввода в эксплуатацию: 1958, 3-комн, Кол-во жилых помещений: 36, А, дом 14, корпус 1, да, да, да, да, да, да, Имеется, Грузовых лифтов: 0, Год постройки: 1958, Инициативная улица, 37.455507, 55.716184
Свяжитесь со мной на счет цены
10 дн.
T55S716184L37S455507T

На карте


Условия сделки

Источник


Старт продаж

Возможно заинтересует