Top.Mail.Ru

улица Рудневка, д. 15

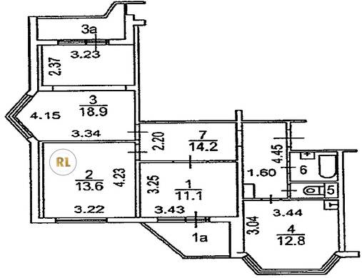
База каталог, Кол-во подъездов: 3, Отсутствует, П-44T, Москва, Косино-Ухтомский, Площадь парковки: 250, Пассажирский лифт: 3, От метро: 940, Восточный, да, Наименьшее кол-во этажей: 12, Наибольшее кол-во этажей: 12, Улица Дмитриевского, Кол-во помещений: 143, Кол-во нежилых помещений: 8, Год ввода в эксплуатацию: 2005, 3-комн, Кол-во жилых помещений: 135, Не присвоен, дом 15, нет, да, да, да, да, да, Отсутствует, Грузовых лифтов: 3, Год постройки: 2005, улица Рудневка, 37.885477, 55.716336
Свяжитесь со мной на счет цены
10 дн.
T55S716336L37S885477T

На карте


Условия сделки

Источник


Старт продаж

Возможно заинтересует