Top.Mail.Ru

Рязанский проспект, д. 44

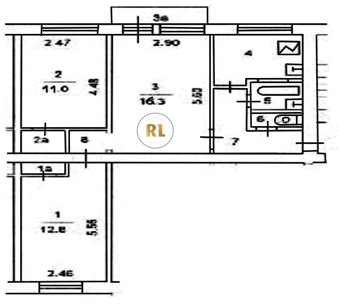
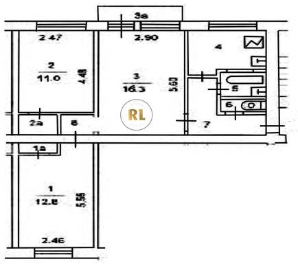
База каталог, Кол-во подъездов: 5, Отсутствует, I-511, Москва, Рязанский, Площадь парковки: 0, Пассажирский лифт: 0, От метро: 207, Юго-Восточный, нет, Наименьшее кол-во этажей: 5, Наибольшее кол-во этажей: 5, Рязанский проспект, Кол-во помещений: 102, Кол-во нежилых помещений: 3, Год ввода в эксплуатацию: 1962, 3-комн, Кол-во жилых помещений: 99, Не присвоен, дом 44, да, да, да, да, да, да, Имеется, Грузовых лифтов: 0, Год постройки: 1962, Рязанский проспект, 37.791253, 55.716564
Свяжитесь со мной на счет цены
10 дн.
T55S716564L37S791253T

На карте


Условия сделки

Источник


Старт продаж

Возможно заинтересует