Top.Mail.Ru

улица Рудневка, д. 33

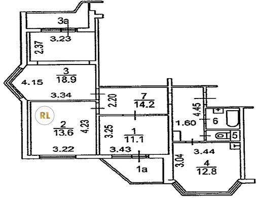
База каталог, Кол-во подъездов: 4, Имеется, П-44T, Москва, Косино-Ухтомский, Площадь парковки: 275, Пассажирский лифт: 4, От метро: 1140, Восточный, да, Наименьшее кол-во этажей: 12, Наибольшее кол-во этажей: 12, Лухмановская, Кол-во помещений: 192, Кол-во нежилых помещений: 13, Год ввода в эксплуатацию: 2005, 3-комн, Кол-во жилых помещений: 179, E, дом 33, нет, да, да, да, да, нет, Имеется, Грузовых лифтов: 4, Год постройки: 2005, улица Рудневка, 37.891514, 55.716767
Свяжитесь со мной на счет цены
10 дн.
T55S716767L37S891514T

На карте


Условия сделки

Источник


Старт продаж

Возможно заинтересует