Top.Mail.Ru

Инициативная ул., д. 16, к. 4

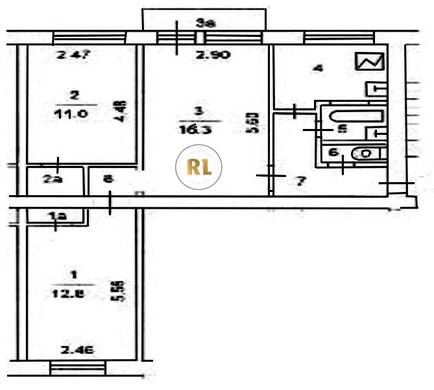
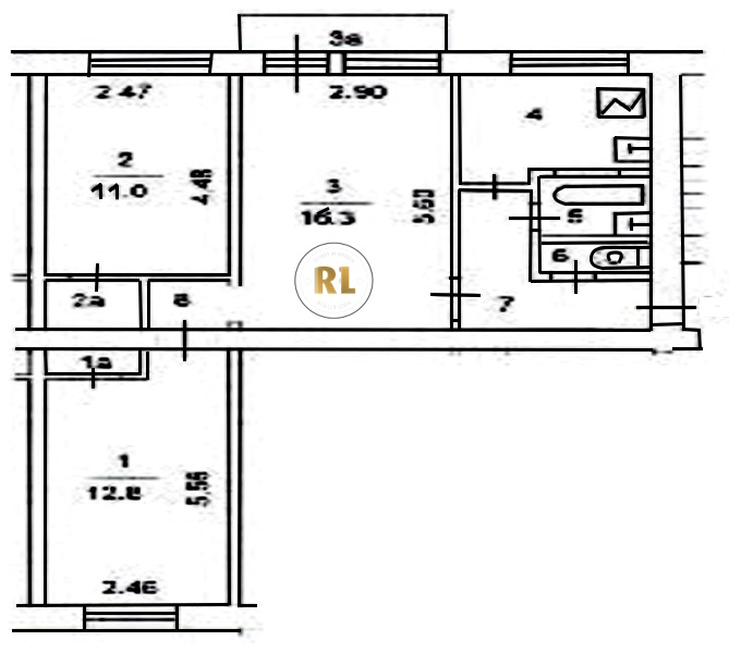
База каталог, Кол-во подъездов: 3, I-511, Москва, Фили-Давыдково, Площадь парковки: 0, Пассажирский лифт: 0, От метро: 370, Западный, нет, Наименьшее кол-во этажей: 1, Наибольшее кол-во этажей: 5, Давыдково, Кол-во помещений: 114, Кол-во нежилых помещений: 57, Год ввода в эксплуатацию: 1963, 3-комн, Кол-во жилых помещений: 57, А, дом 16, корпус 4, да, да, да, да, да, да, Грузовых лифтов: 0, Год постройки: 1963, Инициативная улица, 37.453477, 55.716990
Свяжитесь со мной на счет цены
10 дн.
T55S716990L37S453477T

На карте


Условия сделки

Источник


Старт продаж

Возможно заинтересует