Top.Mail.Ru

Инициативная ул., д. 16, к. 5

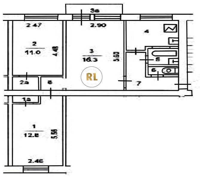
База каталог, Кол-во подъездов: 3, I-511, Москва, Фили-Давыдково, Площадь парковки: 0, Пассажирский лифт: 0, От метро: 460, Западный, нет, Наименьшее кол-во этажей: 0, Наибольшее кол-во этажей: 5, Давыдково, Кол-во помещений: 60, Кол-во нежилых помещений: 0, Год ввода в эксплуатацию: 1966, 3-комн, Кол-во жилых помещений: 60, А, дом 16, корпус 5, да, да, да, да, да, да, Грузовых лифтов: 0, Год постройки: 1966, Инициативная улица, 37.454169, 55.717107
Свяжитесь со мной на счет цены
10 дн.
T55S717107L37S454169T

На карте


Условия сделки

Источник


Старт продаж

Возможно заинтересует